
Article
Designing the laboratory of the future - now
At its heart, the design approach to any contemporary laboratory needs to address the paradigm that science is a fluid, ever-changing process.
As such, facilities need to address inevitable change.
Whilst it is critical to accommodate initial user needs, new facilities must be planned to host and navigate multiple disciplines, programs, technologies and changes to funding over the life of the building. Versatility is crucial to maximise return on investment.
Laboratory planners and informed clients understand a modular and ‘plug ‘n’ play’ approach is fundamental to the delivery of a flexible laboratory space.
We’ve been helping our clients accelerate the design, construction and qualification of their most complex life sciences facilities for over 50 years.
Our experience in facility design has allowed us to establish that the basic building block for laboratory planners is a simple laboratory module.
Modules can start at 3.3m x 3.3m to meet minimum stipulated clearance requirements for aisle widths and primary safety devices such as fume cupboards and biosafety cabinets.
We’ve seen an identifiable and incremental shift towards a 3.6m x 3.6m laboratory module as bench widths get wider to accommodate a greater variety of scientific equipment.
We know that the use of a laboratory planning module is essential to unlock laboratory flexibility.
But what else can be done to foster adaptability and longevity for a laboratory environment?
1. Position hydraulic service elements including fume cupboards, sinks, handbasins, eyewashes and safety showers along the perimeter given their need to connect to waste pipes reticulated through the floor.
2. Use loose joinery where possible for ease of reconfiguration to suit the research needs.
3. Reticulate services from the ceiling ensuring a “plug and play” system, where benches or floor standing equipment can be swapped out depending on the demand.
4. Make sure there are no structural obstructions (columns i.e. structural grid) in the laboratory module.
5. Install full height storage cupboards to the perimeter. These are typically mounted on fixed plinths with coved skirtings for ease of cleaning.
Most modern laboratories consist of large open plan spaces with smaller, peripheral, laboratory support rooms. The open plan lab areas and the double bay support spaces often have islands to accommodate benches and/or equipment.
The reticulation of power, communications and gas services to these islands needs to be from the ceiling. Services rising from below are problematic in terms of isolation and maintenance and an impost on bench flexibility.
The system utilised to reticulate these services from the ceiling to the bench level represents a key opportunity to provide greater flexibility and adaptability within the laboratory.

What do flexible laboratory designs look like in practice?
Here’s an image taken from a project in 2008 where we used a fixed reagent dropper system.

Photo by Wojciech Pluta
At the time, this was considered a state-of-the-art system which brought the services down from the ceiling.
A key performance criterion with the installation of these fixed droppers was ironically their “rigidity”. Bolted and braced to the soffit of the slab above, they needed to maintain sufficient stiffness to withstand the rigors of day-to-day use whilst cantilevering almost 3m.
Whilst this is not an insurmountable feat, this system required a substantial amount of structural steel and invasive fixing into the base building fabric to achieve this rigidity.

Fast forward over a decade and we have managed to turn this solution on its head for our clients.
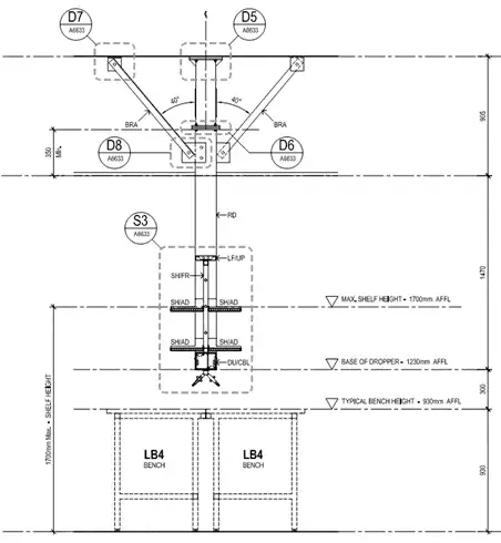
Leveraging the inherent flexibility a loose bench joinery solution provides a laboratory fit out, this concept has been evolved to now include a joinery-based dropper system.
Power data and gases supplies are terminated at the ceiling level in a service panel and then extended down to the dropper utilising flexible cabling and hoses.
The droppers themselves are mounted on a joinery-based spine. These spines, like the loose benches adjacent to them, are completely removable. Once removed, large floor standing equipment can be readily brought-in and plugged directly into the service panel in the ceiling.

The implementation of this system requires attention to detail, with due consideration of aspects such as:
Ultimately this new system, which builds on the 2008 initial concept, provides an enhanced level of versatility and flexibility for the fit out of laboratories and the reticulation of services.
Here’s why it’s better than a traditional rigid fixed dropper system:
1. Removes the need for additional structural steel to appropriately stiffen the fixed droppers. This reduces material usage, costs, embodied carbon and construction time.
2. Reduces the length of droppers and the usage of aluminum, which comes with a high embodied carbon.
3. Fully manufactured in the factory with no site fixing. This improves quality control, simplifies construction sequencing and supports the reduction of the construction program.
4. A clearer line of site across the open plan laboratory. This creates better visual connectivity and transparency which facilitates greater collaboration and safety.
5. Better suited for the adaptive reuse of existing tenancies. With the cultural shift towards working from home and the increasing availability of commercial office space, there is an identifiable opportunity to convert some office spaces into laboratories. A loose joinery and service reticulation system is ideal for this type of retrofit.
This joinery-based system has stood up to the rigors of local standards and guidelines for Physical Containment, Biocontainment and Biosafety laboratories and has shown to perform well time and time again.
As for the fixed dropper system - that was then and this is now. The evolution of this solution is hugely exciting, who knows what we’ll be using a decade from now.
Flexible laboratory spaces, which use innovative solutions such as the joinery-based system in this article, are the future of design.
By removing the need for major renovations or new spaces to be built, scientists can achieve faster results and initiate new studies.
We pride ourselves on supporting our clients accelerate critical research and product manufacture through advanced facility design. We believe in designing the future for a healthier world.